Kloboučnická 18
Půdorys patra 3.NP
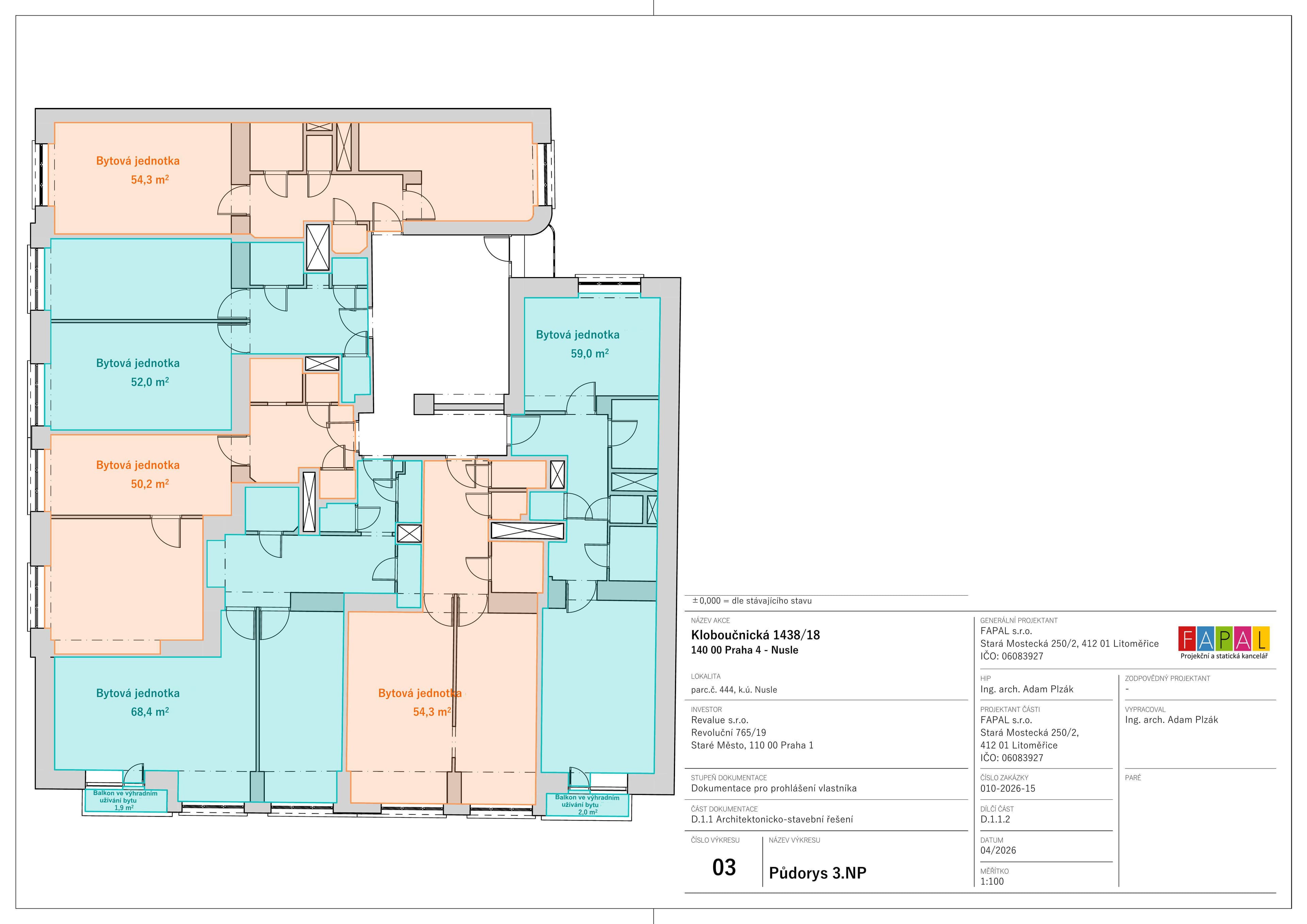
Byt č. 15
2+kk54.3
Volný

Byt č. 15

Cena

7 350 000 Kč

přímý prodej, bez provize RK

Dispozice

2+kk

Plocha

54.3

Byt 2+kk v osobním vlastnictví – Kloboučnická 18, Praha 4 – Nusle

Byt v bytovém domě procházejícím citlivou rekonstrukcí v ulici Kloboučnická, Praha 4 – Nusle. Citlivá modernizace s důrazem na komfort současného bydlení a zachování charakteru městské architektury.

Každý byt nabízí možnost individuálního přizpůsobení interiéru dle vlastních představ.

Infrastruktura domu:

  • Vodovod a veřejná kanalizace
  • Ústřední dálkové vytápění s radiátory
  • Výborná dostupnost MHD (autobus a tramvaj)

Lokalita:

  • Klidná ulice v oblíbené části Prahy 4 – Nusle
  • Obchody, restaurace a kavárny v docházkové vzdálenosti
  • Školy, školky a parky v okolí

Parametry bytu

VlastnictvíOsobní
Podlaží3.NP z 6
StavbaCihlová, po rekonstrukci
VytápěníÚstřední dálkové
Energetická náročnostG
BalkónNe
TerasaNe
ZahradaNe
SklepNe